3-Комнатная квартира, 82 м², ID 563878
Обновлено 2 недели назад
25 482 000 ₽
310 756 ₽ / м2
- Срок сдачи
- I квартал 2021
- Застройщик
- нет данных
- Общая площадь
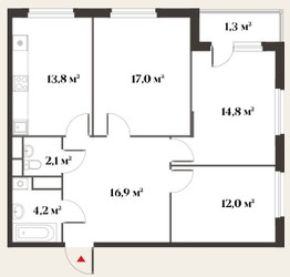
- 82 м2
- Жилая площадь
- 43.7 м2
- Площадь кухни
- 14 м2
- Высота потолков
- 3.28 м
- Этаж
- 3 из 6
- Корпус
- 1
- Отделка
- Черновая
- Санузел
- Раздельный
- ID
- 563878
Описание
Трехкомнатная квартира, 82 м2 в Миниполис 8 кленов от
Продается трехкомнатная квартира в новостройке Миниполис 8 кленов за 25 482 000 р, находящаяся по адресу Красногорск, мкр Опалиха, ул Новая Московская, двлд 49. Застройщик дома СИТИ21. Квартира сдается в I квартале 2021 года с черновой отделкой, в 24 минутах на машине от станции метрополитена Волоколамская. Общая площадь квартиры - 82 м². Этаж 3. ID квартиры на СтройкиРУ 563878, назовите его когда будете звонить.













