2-Комнатная квартира, 51.8 м², ID 563866
Обновлено 2 недели назад
16 721 000 ₽
322 799 ₽ / м2
- Срок сдачи
- I квартал 2021
- Застройщик
- нет данных
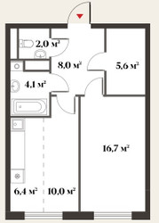
- Общая площадь
- 51.8 м2
- Жилая площадь
- 31.1 м2
- Площадь кухни
- 6 м2
- Высота потолков
- 3.28 м
- Этаж
- 4 из 6
- Корпус
- 1
- Отделка
- Черновая
- Санузел
- Раздельный
- ID
- 563866
Описание
Двухкомнатная квартира, 51.8 м2 в Миниполис 8 кленов от
Продается двухкомнатная квартира в новостройке Миниполис 8 кленов стоимостью 16 721 000 р, по адресу Красногорск, мкр Опалиха, ул Новая Московская, двлд 49. Застройщик дома СИТИ21. Квартира сдается в I квартале 2021 года с черновой отделкой, в 24 минутах на машине от станции метро Волоколамская. Общая площадь квартиры - 51.8 м². Этаж 4. ID квартиры на СтройкиРУ 563866, скажите его когда будете звонить.













