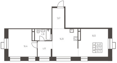
2-Комнатная квартира, 65.7 м², ID 609096
Обновлено 3 дня назад
10 286 745 ₽
156 571 ₽ / м2
- Срок сдачи
- IV квартал 2026
- Застройщик
- нет данных
- Общая площадь
- 65.7 м2
- Этаж
- 10 из 25
- Корпус
- 1.1.
- Отделка
- Предчистовая
- ID
- 609096
Описание
Двухкомнатная квартира, 65.7 м2 в ЖК Новая Ивантеевка от
Продается двухкомнатная квартира в новостройке ЖК Новая Ивантеевка по цене 10 286 745 рублей, расположенная по адресу Ивантеевка, ул Заводская. Компания застройщик ПРОФИ-Инвест. Квартира сдается в IV квартале 2026 года с предчистовой отделкой, в 25 минутах на машине от метро Медведково. Общая площадь квартиры - 65.7 м². Этаж 10. ID квартиры на СтройкиРУ 609096, сообщите его когда будете звонить.


















