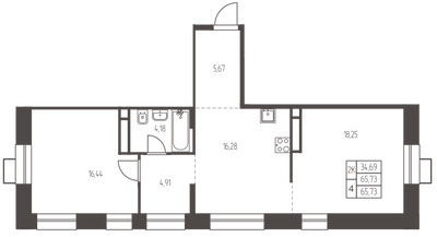
2-Комнатная квартира, 65.7 м², ID 609092
Обновлено позавчера
10 286 745 ₽
156 571 ₽ / м2
- Срок сдачи
- IV квартал 2026
- Застройщик
- нет данных
- Общая площадь
- 65.7 м2
- Этаж
- 9 из 25
- Корпус
- 1.1.
- Отделка
- Предчистовая
- ID
- 609092
Описание
Двухкомнатная квартира, 65.7 м2 в ЖК Новая Ивантеевка от
Продается двухкомнатная квартира в новостройке ЖК Новая Ивантеевка стоимостью 10 286 745 р, по адресу Ивантеевка, ул Заводская. Застройщик дома ПРОФИ-Инвест. Квартира сдается в IV квартале 2026 года с предчистовой отделкой, в 25 минутах на машине от станции метро Медведково. Общая площадь квартиры - 65.7 м². Этаж 9. ID квартиры на СтройкиРУ 609092, скажите его когда будете звонить.


















