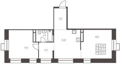
2-Комнатная квартира, 65.7 м², ID 609072
Обновлено позавчера
9 925 230 ₽
151 069 ₽ / м2
- Срок сдачи
- IV квартал 2026
- Застройщик
- нет данных
- Общая площадь
- 65.7 м2
- Этаж
- 4 из 25
- Корпус
- 1.1.
- Отделка
- Предчистовая
- ID
- 609072
Описание
Двухкомнатная квартира, 65.7 м2 в ЖК Новая Ивантеевка от
Продается двухкомнатная квартира в новостройке ЖК Новая Ивантеевка за 9 925 230 рублей, находящаяся по адресу Ивантеевка, ул Заводская. Компания застройщик ПРОФИ-Инвест. Квартира сдается в IV квартале 2026 года с предчистовой отделкой, в 25 минутах на машине от станции метрополитена Медведково. Общая площадь квартиры - 65.7 м². Этаж 4. ID квартиры на СтройкиРУ 609072, назовите его когда будете звонить.


















