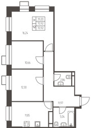
3-Комнатная квартира, 70.9 м², ID 609053
Обновлено 4 дня назад
9 503 280 ₽
134 038 ₽ / м2
- Срок сдачи
- IV квартал 2026
- Застройщик
- нет данных
- Общая площадь
- 70.9 м2
- Этаж
- 2 из 25
- Корпус
- 1.1.
- Отделка
- Предчистовая
- ID
- 609053
Описание
Трехкомнатная квартира, 70.9 м2 в ЖК Новая Ивантеевка от
Продается трехкомнатная квартира в новостройке ЖК Новая Ивантеевка за 9 503 280 рублей, находящаяся по адресу Ивантеевка, ул Заводская. Компания застройщик ПРОФИ-Инвест. Квартира сдается в IV квартале 2026 года с предчистовой отделкой, в 25 минутах на машине от станции метрополитена Медведково. Общая площадь квартиры - 70.9 м². Этаж 2. ID квартиры на СтройкиРУ 609053, назовите его когда будете звонить.


















