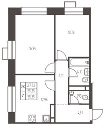
2-Комнатная квартира, 55.4 м², ID 608960
Обновлено 5 дня назад
8 357 850 ₽
150 864 ₽ / м2
- Срок сдачи
- IV квартал 2026
- Застройщик
- нет данных
- Общая площадь
- 55.4 м2
- Этаж
- 9 из 25
- Корпус
- 1.1.
- Отделка
- Предчистовая
- ID
- 608960
Описание
Двухкомнатная квартира, 55.4 м2 в ЖК Новая Ивантеевка от
Продается 2-комн. квартира в новостройке ЖК Новая Ивантеевка стоимостью 8 357 850 руб, по адресу Ивантеевка, ул Заводская. Застройщик ПРОФИ-Инвест. Квартира сдается в 4 квартале 2026 года с предчистовой отделкой, в 25 минутах на машине от станции метро Медведково. Общая площадь квартиры - 55.4 кв. м. Этаж 9. ID квартиры на СтройкиРУ 608960, скажите его когда будете звонить.


















