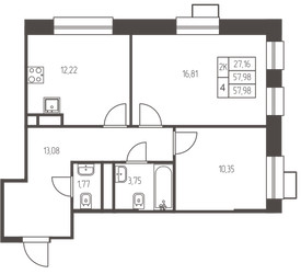
2-Комнатная квартира, 58 м², ID 608945
Обновлено вчера
8 639 020 ₽
148 949 ₽ / м2
- Срок сдачи
- IV квартал 2026
- Застройщик
- нет данных
- Общая площадь
- 58 м2
- Этаж
- 13 из 25
- Корпус
- 1.1.
- Отделка
- Предчистовая
- ID
- 608945
Описание
Двухкомнатная квартира, 58 м2 в ЖК Новая Ивантеевка от
Продается двухкомнатная квартира в новостройке ЖК Новая Ивантеевка по цене 8 639 020 рублей, расположенная по адресу Ивантеевка, ул Заводская. Компания застройщик ПРОФИ-Инвест. Квартира сдается в IV квартале 2026 года с предчистовой отделкой, в 25 минутах на машине от метро Медведково. Общая площадь квартиры - 58 м². Этаж 13. ID квартиры на СтройкиРУ 608945, сообщите его когда будете звонить.


















