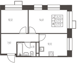
2-Комнатная квартира, 47.1 м², ID 608936
Обновлено вчера
7 737 104 ₽
164 270 ₽ / м2
- Срок сдачи
- IV квартал 2026
- Застройщик
- нет данных
- Общая площадь
- 47.1 м2
- Этаж
- 19 из 25
- Корпус
- 1.1.
- Отделка
- Предчистовая
- ID
- 608936
Описание
Двухкомнатная квартира, 47.1 м2 в ЖК Новая Ивантеевка от
Продается двухкомнатная квартира в новостройке ЖК Новая Ивантеевка за 7 737 104 р, находящаяся по адресу Ивантеевка, ул Заводская. Застройщик дома ПРОФИ-Инвест. Квартира сдается в IV квартале 2026 года с предчистовой отделкой, в 25 минутах на машине от станции метрополитена Медведково. Общая площадь квартиры - 47.1 м². Этаж 19. ID квартиры на СтройкиРУ 608936, назовите его когда будете звонить.


















