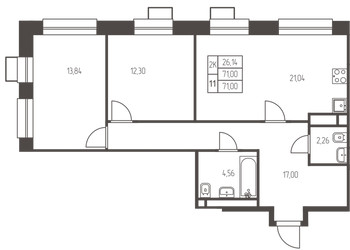
2-Комнатная квартира, 71 м², ID 608927
Обновлено неделю назад
11 125 700 ₽
156 700 ₽ / м2
- Срок сдачи
- IV квартал 2026
- Застройщик
- нет данных
- Общая площадь
- 71 м2
- Этаж
- 22 из 25
- Корпус
- 1.1.
- Отделка
- Предчистовая
- ID
- 608927
Описание
Двухкомнатная квартира, 71 м2 в ЖК Новая Ивантеевка от
Продается двухкомнатная квартира в новостройке ЖК Новая Ивантеевка стоимостью 11 125 700 р, по адресу Ивантеевка, ул Заводская. Застройщик дома ПРОФИ-Инвест. Квартира сдается в IV квартале 2026 года с предчистовой отделкой, в 25 минутах на машине от станции метро Медведково. Общая площадь квартиры - 71 м². Этаж 22. ID квартиры на СтройкиРУ 608927, скажите его когда будете звонить.























