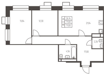
2-Комнатная квартира, 71 м², ID 608911
Обновлено 3 дня назад
10 969 500 ₽
154 500 ₽ / м2
- Срок сдачи
- IV квартал 2026
- Застройщик
- нет данных
- Общая площадь
- 71 м2
- Этаж
- 20 из 25
- Корпус
- 1.1.
- Отделка
- Предчистовая
- ID
- 608911
Описание
Двухкомнатная квартира, 71 м2 в ЖК Новая Ивантеевка от
Продается двухкомнатная квартира в новостройке ЖК Новая Ивантеевка за 10 969 500 рублей, находящаяся по адресу Ивантеевка, ул Заводская. Компания застройщик ПРОФИ-Инвест. Квартира сдается в IV квартале 2026 года с предчистовой отделкой, в 25 минутах на машине от станции метрополитена Медведково. Общая площадь квартиры - 71 м². Этаж 20. ID квартиры на СтройкиРУ 608911, назовите его когда будете звонить.


















