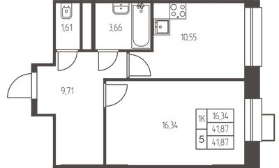
1-Комнатная квартира, 41.9 м², ID 608877
Обновлено 4 дня назад
6 531 720 ₽
155 888 ₽ / м2
- Срок сдачи
- IV квартал 2026
- Застройщик
- нет данных
- Общая площадь
- 41.9 м2
- Этаж
- 25 из 25
- Корпус
- 1.1.
- Отделка
- Предчистовая
- ID
- 608877
Описание
Однокомнатная квартира, 41.9 м2 в ЖК Новая Ивантеевка от
Продается однокомнатная квартира в новостройке ЖК Новая Ивантеевка за 6 531 720 р, находящаяся по адресу Ивантеевка, ул Заводская. Застройщик дома ПРОФИ-Инвест. Квартира сдается в IV квартале 2026 года с предчистовой отделкой, в 25 минутах на машине от станции метрополитена Медведково. Общая площадь квартиры - 41.9 м². Этаж 25. ID квартиры на СтройкиРУ 608877, назовите его когда будете звонить.


















