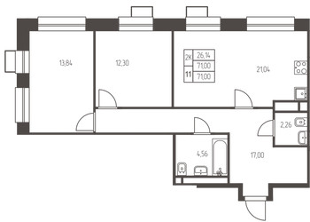
2-Комнатная квартира, 71 м², ID 608871
Обновлено 4 дня назад
10 579 000 ₽
149 000 ₽ / м2
- Срок сдачи
- IV квартал 2026
- Застройщик
- нет данных
- Общая площадь
- 71 м2
- Этаж
- 15 из 25
- Корпус
- 1.1.
- Отделка
- Предчистовая
- ID
- 608871
Описание
Двухкомнатная квартира, 71 м2 в ЖК Новая Ивантеевка от
Продается 2-комн. квартира в новостройке ЖК Новая Ивантеевка стоимостью 10 579 000 ₽, по адресу Ивантеевка, ул Заводская. Строится компанией ПРОФИ-Инвест. Квартира сдается в 4 квартале 2026 года с предчистовой отделкой, в 25 минутах на машине от станции метро Медведково. Общая площадь квартиры - 71 кв. м. Этаж 15. ID квартиры на СтройкиРУ 608871, скажите его когда будете звонить.


















