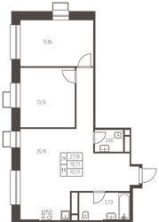
2-Комнатная квартира, 70.7 м², ID 608866
Обновлено 4 дня назад
10 394 370 ₽
147 021 ₽ / м2
- Срок сдачи
- IV квартал 2026
- Застройщик
- нет данных
- Общая площадь
- 70.7 м2
- Этаж
- 23 из 25
- Корпус
- 1.1.
- Отделка
- Предчистовая
- ID
- 608866
Описание
Двухкомнатная квартира, 70.7 м2 в ЖК Новая Ивантеевка от
Продается 2-комн. квартира в новостройке ЖК Новая Ивантеевка за 10 394 370 руб, находящаяся по адресу Ивантеевка, ул Заводская. Застройщик ПРОФИ-Инвест. Квартира сдается в 4 квартале 2026 года с предчистовой отделкой, в 25 минутах на машине от станции метрополитена Медведково. Общая площадь квартиры - 70.7 кв. м. Этаж 23. ID квартиры на СтройкиРУ 608866, назовите его когда будете звонить.


















