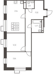
2-Комнатная квартира, 70.9 м², ID 608846
Обновлено 3 дня назад
10 284 850 ₽
145 061 ₽ / м2
- Срок сдачи
- IV квартал 2026
- Застройщик
- нет данных
- Общая площадь
- 70.9 м2
- Этаж
- 19 из 25
- Корпус
- 1.1.
- Отделка
- Предчистовая
- ID
- 608846
Описание
Двухкомнатная квартира, 70.9 м2 в ЖК Новая Ивантеевка от
Продается двухкомнатная квартира в новостройке ЖК Новая Ивантеевка стоимостью 10 284 850 рублей, по адресу Ивантеевка, ул Заводская. Компания застройщик ПРОФИ-Инвест. Квартира сдается в IV квартале 2026 года с предчистовой отделкой, в 25 минутах на машине от станции метро Медведково. Общая площадь квартиры - 70.9 м². Этаж 19. ID квартиры на СтройкиРУ 608846, скажите его когда будете звонить.


















