1-Комнатная квартира, 41.9 м², ID 608845
Обновлено вчера
6 364 240 ₽
151 891 ₽ / м2
- Срок сдачи
- IV квартал 2026
- Застройщик
- нет данных
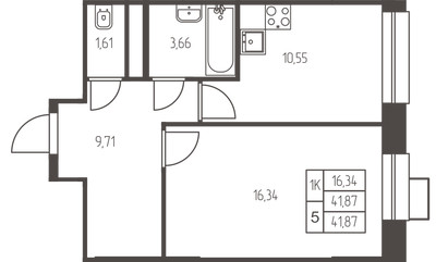
- Общая площадь
- 41.9 м2
- Этаж
- 21 из 25
- Корпус
- 1.1.
- Отделка
- Предчистовая
- ID
- 608845
Описание
Однокомнатная квартира, 41.9 м2 в ЖК Новая Ивантеевка от
Продается 1-комн. квартира в новостройке ЖК Новая Ивантеевка стоимостью 6 364 240 ₽, по адресу Ивантеевка, ул Заводская. Строится компанией ПРОФИ-Инвест. Квартира сдается в 4 квартале 2026 года с предчистовой отделкой, в 25 минутах на машине от станции метро Медведково. Общая площадь квартиры - 41.9 кв. м. Этаж 21. ID квартиры на СтройкиРУ 608845, скажите его когда будете звонить.


















