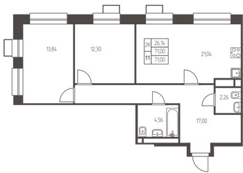
2-Комнатная квартира, 71 м², ID 608839
Обновлено 4 дня назад
10 266 600 ₽
144 600 ₽ / м2
- Срок сдачи
- IV квартал 2026
- Застройщик
- нет данных
- Общая площадь
- 71 м2
- Этаж
- 11 из 25
- Корпус
- 1.1.
- Отделка
- Предчистовая
- ID
- 608839
Описание
Двухкомнатная квартира, 71 м2 в ЖК Новая Ивантеевка от
Продается двухкомнатная квартира в новостройке ЖК Новая Ивантеевка стоимостью 10 266 600 р, по адресу Ивантеевка, ул Заводская. Застройщик дома ПРОФИ-Инвест. Квартира сдается в IV квартале 2026 года с предчистовой отделкой, в 25 минутах на машине от станции метро Медведково. Общая площадь квартиры - 71 м². Этаж 11. ID квартиры на СтройкиРУ 608839, скажите его когда будете звонить.


















