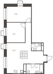
2-Комнатная квартира, 70.7 м², ID 608834
Обновлено 4 дня назад
10 252 950 ₽
145 021 ₽ / м2
- Срок сдачи
- IV квартал 2026
- Застройщик
- нет данных
- Общая площадь
- 70.7 м2
- Этаж
- 18 из 25
- Корпус
- 1.1.
- Отделка
- Предчистовая
- ID
- 608834
Описание
Двухкомнатная квартира, 70.7 м2 в ЖК Новая Ивантеевка от
Продается двухкомнатная квартира в новостройке ЖК Новая Ивантеевка стоимостью 10 252 950 р, по адресу Ивантеевка, ул Заводская. Застройщик дома ПРОФИ-Инвест. Квартира сдается в IV квартале 2026 года с предчистовой отделкой, в 25 минутах на машине от станции метро Медведково. Общая площадь квартиры - 70.7 м². Этаж 18. ID квартиры на СтройкиРУ 608834, скажите его когда будете звонить.


















