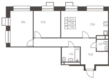
2-Комнатная квартира, 71 м², ID 608815
Обновлено позавчера
9 993 250 ₽
140 750 ₽ / м2
- Срок сдачи
- IV квартал 2026
- Застройщик
- нет данных
- Общая площадь
- 71 м2
- Этаж
- 8 из 25
- Корпус
- 1.1.
- Отделка
- Предчистовая
- ID
- 608815
Описание
Двухкомнатная квартира, 71 м2 в ЖК Новая Ивантеевка от
Продается 2-комн. квартира в новостройке ЖК Новая Ивантеевка за 9 993 250 руб, находящаяся по адресу Ивантеевка, ул Заводская. Застройщик ПРОФИ-Инвест. Квартира сдается в 4 квартале 2026 года с предчистовой отделкой, в 25 минутах на машине от станции метрополитена Медведково. Общая площадь квартиры - 71 кв. м. Этаж 8. ID квартиры на СтройкиРУ 608815, назовите его когда будете звонить.
























