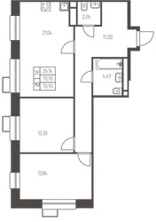
2-Комнатная квартира, 70.9 м², ID 608802
Обновлено неделю назад
10 072 060 ₽
142 060 ₽ / м2
- Срок сдачи
- IV квартал 2026
- Застройщик
- нет данных
- Общая площадь
- 70.9 м2
- Этаж
- 13 из 25
- Корпус
- 1.1.
- Отделка
- Предчистовая
- ID
- 608802
Описание
Двухкомнатная квартира, 70.9 м2 в ЖК Новая Ивантеевка от
Продается 2-комн. квартира в новостройке ЖК Новая Ивантеевка стоимостью 10 072 060 ₽, по адресу Ивантеевка, ул Заводская. Строится компанией ПРОФИ-Инвест. Квартира сдается в 4 квартале 2026 года с предчистовой отделкой, в 25 минутах на машине от станции метро Медведково. Общая площадь квартиры - 70.9 кв. м. Этаж 13. ID квартиры на СтройкиРУ 608802, скажите его когда будете звонить.























