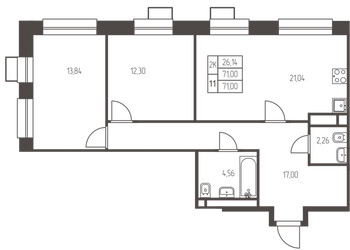
2-Комнатная квартира, 71 м², ID 608791
Обновлено 2 недели назад
9 798 000 ₽
138 000 ₽ / м2
- Срок сдачи
- IV квартал 2026
- Застройщик
- нет данных
- Общая площадь
- 71 м2
- Этаж
- 2 из 25
- Корпус
- 1.1.
- Отделка
- Предчистовая
- ID
- 608791
Описание
Двухкомнатная квартира, 71 м2 в ЖК Новая Ивантеевка от
Продается двухкомнатная квартира в новостройке ЖК Новая Ивантеевка стоимостью 9 798 000 р, по адресу Ивантеевка, ул Заводская. Застройщик дома ПРОФИ-Инвест. Квартира сдается в IV квартале 2026 года с предчистовой отделкой, в 25 минутах на машине от станции метро Медведково. Общая площадь квартиры - 71 м². Этаж 2. ID квартиры на СтройкиРУ 608791, скажите его когда будете звонить.



























