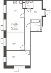
2-Комнатная квартира, 70.9 м², ID 608790
Обновлено 4 дня назад
10 001 130 ₽
141 060 ₽ / м2
- Срок сдачи
- IV квартал 2026
- Застройщик
- нет данных
- Общая площадь
- 70.9 м2
- Этаж
- 12 из 25
- Корпус
- 1.1.
- Отделка
- Предчистовая
- ID
- 608790
Описание
Двухкомнатная квартира, 70.9 м2 в ЖК Новая Ивантеевка от
Продается 2-комн. квартира в новостройке ЖК Новая Ивантеевка по цене 10 001 130 ₽, расположенная по адресу Ивантеевка, ул Заводская. Строится компанией ПРОФИ-Инвест. Квартира сдается в 4 квартале 2026 года с предчистовой отделкой, в 25 минутах на машине от метро Медведково. Общая площадь квартиры - 70.9 кв. м. Этаж 12. ID квартиры на СтройкиРУ 608790, сообщите его когда будете звонить.


















