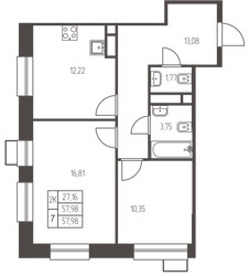
2-Комнатная квартира, 58 м², ID 608759
Обновлено 5 дня назад
9 213 022 ₽
158 845 ₽ / м2
- Срок сдачи
- IV квартал 2026
- Застройщик
- нет данных
- Общая площадь
- 58 м2
- Этаж
- 24 из 25
- Корпус
- 1.1.
- Отделка
- Предчистовая
- ID
- 608759
Описание
Двухкомнатная квартира, 58 м2 в ЖК Новая Ивантеевка от
Продается 2-комн. квартира в новостройке ЖК Новая Ивантеевка стоимостью 9 213 022 руб, по адресу Ивантеевка, ул Заводская. Застройщик ПРОФИ-Инвест. Квартира сдается в 4 квартале 2026 года с предчистовой отделкой, в 25 минутах на машине от станции метро Медведково. Общая площадь квартиры - 58 кв. м. Этаж 24. ID квартиры на СтройкиРУ 608759, скажите его когда будете звонить.


















