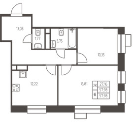
2-Комнатная квартира, 58 м², ID 608702
Обновлено 2 недели назад
8 870 940 ₽
152 947 ₽ / м2
- Срок сдачи
- IV квартал 2026
- Застройщик
- нет данных
- Общая площадь
- 58 м2
- Этаж
- 23 из 25
- Корпус
- 1.1.
- Отделка
- Предчистовая
- ID
- 608702
Описание
Двухкомнатная квартира, 58 м2 в ЖК Новая Ивантеевка от
Продается 2-комн. квартира в новостройке ЖК Новая Ивантеевка по цене 8 870 940 ₽, расположенная по адресу Ивантеевка, ул Заводская. Строится компанией ПРОФИ-Инвест. Квартира сдается в 4 квартале 2026 года с предчистовой отделкой, в 25 минутах на машине от метро Медведково. Общая площадь квартиры - 58 кв. м. Этаж 23. ID квартиры на СтройкиРУ 608702, сообщите его когда будете звонить.



























