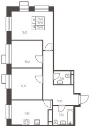
3-Комнатная квартира, 70.9 м², ID 608157
Обновлено вчера
10 283 400 ₽
145 041 ₽ / м2
- Срок сдачи
- IV квартал 2026
- Застройщик
- нет данных
- Общая площадь
- 70.9 м2
- Этаж
- 15 из 25
- Корпус
- 1.1.
- Отделка
- Предчистовая
- ID
- 608157
Описание
Трехкомнатная квартира, 70.9 м2 в ЖК Новая Ивантеевка от
Продается трехкомнатная квартира в новостройке ЖК Новая Ивантеевка стоимостью 10 283 400 р, по адресу Ивантеевка, ул Заводская. Застройщик дома ПРОФИ-Инвест. Квартира сдается в IV квартале 2026 года с предчистовой отделкой, в 25 минутах на машине от станции метро Медведково. Общая площадь квартиры - 70.9 м². Этаж 15. ID квартиры на СтройкиРУ 608157, скажите его когда будете звонить.
























