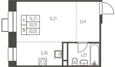
Квартира-студия, 30.1 м², ID 608144
Обновлено вчера
4 702 825 ₽
156 240 ₽ / м2
- Срок сдачи
- IV квартал 2026
- Застройщик
- нет данных
- Тип
- Студия
- Общая площадь
- 30.1 м2
- Этаж
- 12 из 25
- Корпус
- 1.1.
- Отделка
- Предчистовая
- ID
- 608144
Описание
Студия квартира, 30.1 м2 в ЖК Новая Ивантеевка от
Продается квартира-студия в новостройке ЖК Новая Ивантеевка за 4 702 825 руб, находящаяся по адресу Ивантеевка, ул Заводская. Застройщик ПРОФИ-Инвест. Квартира сдается в 4 квартале 2026 года с предчистовой отделкой, в 25 минутах на машине от станции метрополитена Медведково. Общая площадь квартиры - 30.1 кв. м. Этаж 12. ID квартиры на СтройкиРУ 608144, назовите его когда будете звонить.
























