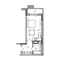
Квартира-студия, 24.1 м², ID 663987
Обновлено 5 дня назад
1 из 8
7 218 000 ₽
299 502 ₽ / м2
Описание
Студия квартира, 24.1 м2 в ЖК Квартал Светлый от
Продается квартира-студия в новостройке ЖК Квартал Светлый по цене 7 218 000 р, расположенная по адресу Балашиха, ул Твардовского, д 36. Застройщик дома Сетьстрой. Квартира сдается в I квартале 2026 года с черновой отделкой, в 30 минутах на машине от метро Новокосино. Общая площадь квартиры - 24.1 м². Этаж 11. ID квартиры на СтройкиРУ 663987, сообщите его когда будете звонить.
Подробнее о ЖК Квартал Светлый
“Квартал Светлый” - жилой комплекс комфорт-класса в Балашихе от группы компаний “Сетьстрой”. На территории комплекса запланировано 4 корпуса, высота зданий будет варьироваться от 14 до 17 этажей.
Инфраструктура и благоустройство
Хорошая транспортная доступность. Удаленность ЖК от МКАД – 10 км. Всего в 200 м от комплекса есть остановка общественного транспорта, до станции метро “Новокосино” - 30 минут на транспорте
Так как новостройка располагается на территории большого гипермаркета “Лента”, жильцы комплекса обязательно оценят удобство инфраструктуры, которая включает в себя: дошкольные учебные заведения, гимназии, школы, различные магазины со всеми необходимыми товарами в шаговой доступности, медицинские учреждения и спортзалы
В ЖК “Квартал Светлый” есть отличительная черта - наличие стилобата, на котором и будут располагаться здания жилого комплекса. На территории стилобата будут открыты магазины, библиотека, банк, спортивный комплекс. В цокольной части одного из корпусов будет располагаться детский садик на 112 мест
Для хранения личных автомобилей будет организован подземный паркинг, а все гости смогут оставлять свой транспорт на открытом паркинге
Для отдыха и релаксации возле жилого комплекса находится Озерный парк.
Страница ЖК >>


























