1-Комнатная квартира, 44.9 м², ID 611025
Обновлено позавчера
8 750 000 ₽
194 878 ₽ / м2
- Срок сдачи
- I квартал 2025
- Застройщик
- нет данных
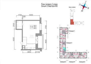
- Общая площадь
- 44.9 м2
- Этаж
- 3 из 7
- Корпус
- 1.1
- Отделка
- не указана
- ID
- 611025
Описание
Однокомнатная квартира, 44.9 м2 в ЖК Art (АРТ) от
Продается 1-комн. квартира в новостройке ЖК Art (АРТ) за 8 750 000 руб, находящаяся по адресу Наро-Фоминск, ул Володарского, д 10. Застройщик Остов. Квартира сдается в 1 квартале 2025 года в 47 минутах на машине от станции метрополитена Аэропорт Внуково. Общая площадь квартиры - 44.9 кв. м. Этаж 3. ID квартиры на СтройкиРУ 611025, назовите его когда будете звонить.














