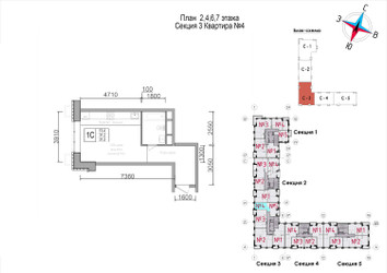
1-Комнатная квартира, 31.2 м², ID 611023
Обновлено позавчера
6 800 000 ₽
217 949 ₽ / м2
- Срок сдачи
- I квартал 2025
- Застройщик
- нет данных
- Общая площадь
- 31.2 м2
- Этаж
- 6 из 7
- Корпус
- 1.1
- Отделка
- не указана
- ID
- 611023
Описание
Однокомнатная квартира, 31.2 м2 в ЖК Art (АРТ) от
Продается однокомнатная квартира в новостройке ЖК Art (АРТ) за 6 800 000 рублей, находящаяся по адресу Наро-Фоминск, ул Володарского, д 10. Компания застройщик Остов. Квартира сдается в I квартале 2025 года в 47 минутах на машине от станции метрополитена Аэропорт Внуково. Общая площадь квартиры - 31.2 м². Этаж 6. ID квартиры на СтройкиРУ 611023, назовите его когда будете звонить.














