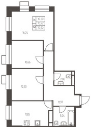
3-Комнатная квартира, 70.9 м², ID 608193
Обновлено вчера
10 708 920 ₽
151 043 ₽ / м2
- Срок сдачи
- IV квартал 2026
- Застройщик
- нет данных
- Общая площадь
- 70.9 м2
- Этаж
- 21 из 25
- Корпус
- 1.1.
- Отделка
- Предчистовая
- ID
- 608193
Описание
Трехкомнатная квартира, 70.9 м2 в ЖК Новая Ивантеевка от
Продается 3-комн. квартира в новостройке ЖК Новая Ивантеевка по цене 10 708 920 ₽, расположенная по адресу Ивантеевка, ул Заводская. Строится компанией ПРОФИ-Инвест. Квартира сдается в 4 квартале 2026 года с предчистовой отделкой, в 25 минутах на машине от метро Медведково. Общая площадь квартиры - 70.9 кв. м. Этаж 21. ID квартиры на СтройкиРУ 608193, сообщите его когда будете звонить.
























